A válvula globo é uma válvula de movimento linear que é utilizada para iniciar, interromper ou regular um fluxo de fluido. Uma das características da válvula globo é seu disco, pois ele é retirado totalmente do fluxo ou totalmente colocado quando a válvula esta fechada interrompendo o fluxo. Quando a válvula esta em processo de abertura ou fechamento o disco se move perpendicularmente ao assento.
Quando este movimento perpendicular se cria um espaço anular entre o disco e o anel da sede que aos poucos vai se fechando quando a válvula é fechada. Devido essa característica a válvula globo fornece uma boa capacidade de estrangulamento que é necessário para fazer a regulagem do fluxo.
A válvula globo possui o vazamento da sua sede menor comparado com outros tipos de válvula (por exemplo a válvula gaveta), essa característica é devido principalmente ao contato angular entre o disco e o anel da sede, que permite uma vedação superior entre a sede e o disco.
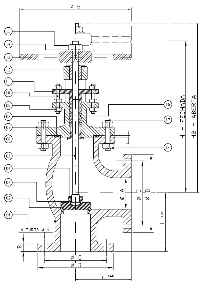
No diagrama abaixo, você pode ver como é uma válvula globo de ferro fundido AISI 125LBS


Existem três tipos de válvula globo, sua características principais são os formatos dos corpos. Os três tipos de válvula globo são:Válvula Globo tipos Z
A Válvula globo angular se move a direção do fluxo em 90 graus sem utilizar um cotovelo ou uma solda de tudo entra. O disco é aberto contra o fluxo.Com essa característica a válvula globo angular também pode ser utilizada na condição de fluxo flutuante, pois esse tipo de válvula é capaz de lidar com efeitos.

A válvula globo do tipo Z possui o corpo simples com um design em forma de Z. A divisória em formato de Z dentro do corpo globular possui o assento, A disposição horizontal do assento permite que a haste e o disco percorra perpendicularmente ao eixo do tubo, com isso a perda muito alta de pressão.
O assento da válvula globo tipo Z é facilmente acessível através do capo, que localiza em uma grande abertura na parte superior de corpo da válvula. A haste passa através do capo semelhante a uma válvula de gaveta. Com a válvula globo tipo z normalmente é utilizada quando a queda de pressão não é algo preocupante e o estrangulamento seja algo necessário.

A válvula globo tipo Y é uma grande solução para problemas de queda de alta pressão que ocorre em válvulas do tipo Z. Nesse tipo de válvula, o assento e a haste são angulados aproximadamente 45 graus em relação ao eixo do tubo.

As válvulas globo são utilizadas para o controle de fluxo .
As princípais vantagem da Válvula Globo.
Funcionamento da Válvula Globo.